売買物件の詳細
徳島市南昭和町七丁目住宅用地
徳島市南昭和町7丁目7-1
土地
- 価格
- 6,000万円
- 物件名 / 号室
- 徳島市南昭和町七丁目住宅用地
- 住所
- 徳島市南昭和町7丁目7-1
- 周辺環境
- 徳島市立昭和小学校:630m 徳島市立富田中学校:1144m 高木医療コア:314mセブン-イレブン 徳島昭和町店:229m ふじおか小児クリニック:556m 篠原内科:493m キョーエイ 昭和店:808m セブン‐イレブン 徳島南昭和町5丁目店:809mハローズ 万代店:762m
基本情報
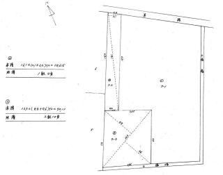
- 土地面積
- 1,257.76㎡ (380.47坪) (公簿)
- 坪単価
- 15.77万円/坪
- 設備
- 上水道,電気,閑静な住宅街
詳細情報
- 建ぺい率
- 60%
- 容積率
- 200%
- 地勢
- 平坦
- 地目
- 田
- 土地権利
- 所有権
- 用途地域
- 第一種住居地域
- 都市計画
- 市街化区域
- 取引態様
- 一般
- 建築条件
- 建築条件なし
- 現況
- 古家あり更地渡し
- 引渡し可能時期
- 要相談
- 接道状況
- 北側 幅員3.8m 公道に接道
- 情報更新日
- 2025/07/17
